Projekt II
Entwurf / Städtebauliche Analyse /Raumkonzept / Visualisierung
Lückenschluss in der historischen Blockrandbebauung
Białystok (Polen), Studienprojekt, 2013
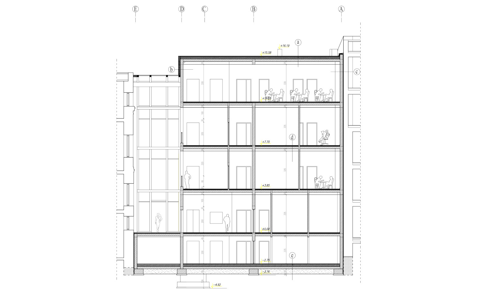
Das Projekt untersucht die Ergänzung einer historischen Straßenfront durch einen zeitgenössischen Neubau. Ziel war es, die städtebauliche Struktur der Blockrandbebauung zu vervollständigen und gleichzeitig eine eigenständige architektonische Identität im Dialog mit dem Bestand zu entwickeln.
Der Entwurf basiert auf einer klaren funktionalen Organisation und einer präzisen Fassadengliederung. Die Fassadenebene wirkt als Filter zwischen öffentlichem Stadtraum und Innenraum und erzeugt durch Rhythmus, Materialität und Licht eine ruhige, atmosphärische Wirkung – insbesondere in der Abendstimmung.
Besonderes Augenmerk lag auf der Maßstäblichkeit im Straßenraum, der Anbindung an die bestehende Gebäudestruktur sowie auf der Entwicklung einer zeitgemäßen Architektursprache innerhalb eines sensiblen historischen Kontextes.
Schwerpunkte:
– Ergänzung der Blockrandstruktur und Integration in den Altstadtkontext
– Fassadenkonzept als Filter für Licht, Rhythmus und Privatheit
– klare Grundrissorganisation und präzise Gliederung im Straßenraum







